Portogruaro - Appartamento Cà Venezia
Progetto






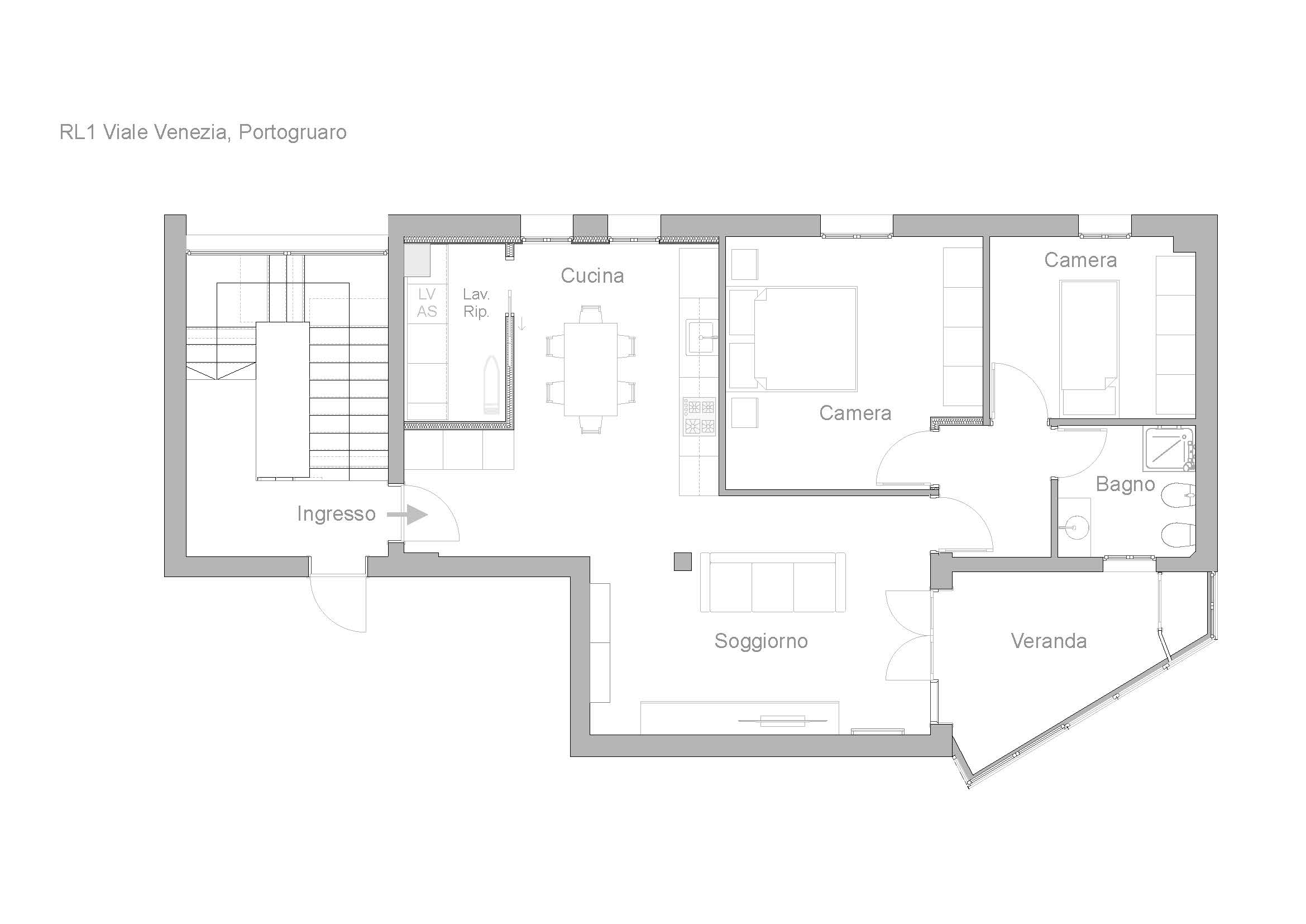
In Viale Venezia 5, in posizione comoda ai principali servizi e a breve distanza dal centro di Portogruaro, proponiamo in vendita appartamento completamente ristrutturato, situato al secondo piano di un contesto residenziale ben mantenuto.
L’immobile, edificato nei primi anni ’80, è stato oggetto di un intervento di riqualificazione integrale che ha interessato la distribuzione interna, le finiture e gli impianti, con l’obiettivo di valorizzare gli spazi e migliorarne funzionalità e comfort abitativo. La superficie commerciale è di circa 88 mq e l’attuale configurazione prevede una luminosa zona giorno open space con cucina a vista e doppio affaccio, un ingresso attrezzabile, un comodo vano adibito a ripostiglio/lavanderia, un disimpegno che separa in modo netto la zona notte, una camera matrimoniale, una seconda stanza ideale come studio o cameretta e un bagno finestrato completamente rinnovato. La terrazza/veranda è stata riqualificata e integrata armoniosamente nel progetto.
Le finiture sono contemporanee, con nuove pavimentazioni in gres, serramenti sostituiti, impianti elettrico e idraulico aggiornati, caldaia autonoma e climatizzazione con tre split. L’unità non è servita da ascensore. Completa la proprietà un garage coperto.
Si tratta di una soluzione pronta da abitare, ideale per chi desidera un appartamento rinnovato, efficiente e ben distribuito, in una zona residenziale tranquilla ma ben collegata.
3 - locali
da 85 - m²
3
Autonomo
No
Si
250.000€
85 m²
2
Si
D
Inizio e fine lavori: 02/2025 - 12/2025
Impresa Appaltatore: Gabetti Lab S.p.A.
Progettazione: Arch. Mauro Peloso
Direzione lavori: Arch. Mauro Peloso
Impresa esecutrice: Eurorestauri
Coordinamento della sicurezza: Arch. Mauro Peloso

300.000€
110 m2
2 Piano
Si
Si
Si
Si
A
Ti interessa questo immobile?